
自然の中の滞在・暮らしに特化したトレーラーハウス「ROADIE」の実車販売がスタートしました!
キャンプ場やグランピング施設などアウトドアフィールド、自然が豊かな場所や遊休地で宿泊施設としての活用や、個人の方には自宅・2ndハウスとしてのご活用など自然の中の滞在と暮らしをご提供します。
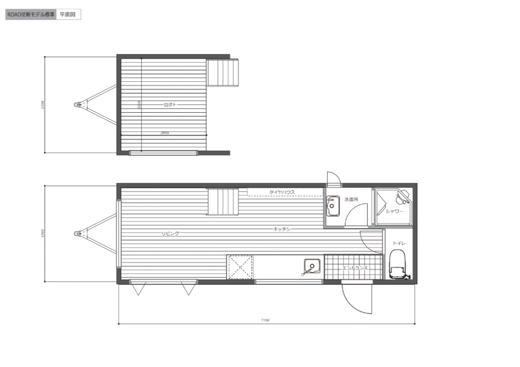
ROADIEの特徴
豊かな自然の中の滞在・暮らしを実現する5つのデザイン
1:自然と調和する木質感のある外壁と内装
2:外の自然と室内がシームレスに繋がるキッチン&リビング
3:プライベート感と開放感を併せ持つラウンジスペース
4:寝室や荷物置き場など自由に使える秘密基地のようなロフト
5:充実した水回りや収納設備、暮らしをイメージした空間活用

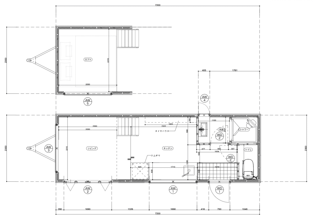
今回のモデルから、キッチンのレイアウトを見直し、シンクとコンロの位置をより使いやすい配置に変更しました。(※写真のコンロは付属しません)
また、キッチン上の戸棚デザインもすっきりとした形へリニューアル。見た目も使い勝手もさらによくなりました。
リビングには外とつながる掃き出し窓と景色を眺められるFIX窓があり、明るく開放的な空間を実現しました。
ロフトも換気用の小窓を設け、読書や作業などもできる天井の高さもございます。