YADOKARI
経年年数:3年未満
サイズ:20㎡
用途:住宅宿泊
¥11,900,000税前価格
【取引形態】YADOKARI売主商品(手数料不要)
本商品はYADOKARIが所有している商品であり、販売手数料は不要です。配送設置費用等は別途かかります。
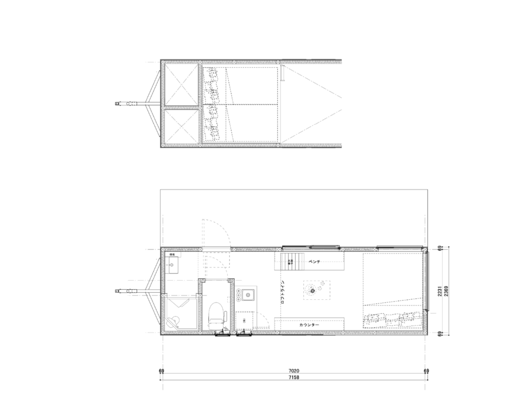
自然の風合いを生かした温かみのある木材と、広々としたリビングスペースが融合した空間をご提供する「MIGRA」の太陽光パネル搭載モデル・太陽光パネルが一体型になった屋根材「Roof–1」を搭載しています。
太陽光発電システムによる1日あたりの発電量は天候・日照時間により変動はありますが約7kWh(春〜夏)/4kWh(秋〜冬)、蓄電池を併用することで1〜2日分の電力を賄う事ができ、消費した電力は太陽光により自然と供給されます。
電力が不足した場合は通常電力から供給を行い、夜間や停電時にも運用は可能。
設置場所やインフラに縛られず、自由で快適な暮らしを実現できるモデルです。
1:屋根一体型でスタイリッシュなデザイン
「Roof-1」は金属屋根に特殊加工した太陽光セルを組み込むことで、見た目が普通の屋根と変わらない一体感のあるデザインを実現。トレーラーハウスの外観を損なうことなく、太陽光発電の利便性を提供します。
2:電気がない場所でも活用できる!
太陽光パネルと蓄電池を搭載しているため、電気の供給がない場所でも設置が可能です。

内外装共に自然の中に馴染む木の雰囲気をお楽しみいただけます。

カウンターとベンチを完備しています。
寸法
L7158mm(牽引部含まず) × W2369mm × H3800mm
面積
15.6㎡+ロフト4.6㎡
構造
木造
外壁
金属サイディング
屋根
Roof–1・ガルバリウム鋼板
内壁・天井
ラワン合板(仕上げは別途オプション)
床
フロアタイル(別途オプション)
窓
アルミ樹脂複合ペアガラス
断熱
屋根 |ミラフォーム 50mm 壁|グラスウール 90mm 床 | ミラフォーム 40mm
設備
ベンチ、カウンター、ステンレスキッチン、タンク式トイレ、シャワーブース、洗面台、換気扇、棚、ダウンライト、ライティングレール、太陽光システム(Roof–1、パワー・コンディショナー、分電盤(切替機能付き)、電力測定器、蓄電池)
別途工事
(別途費用)
配送費用、設置費用、撤去費用
完成時期
2025年1月
車検有無
有
製造元
YADOKARI
現在の保管場所
神奈川県横浜市
特記事項
YADOKARIが売主のため、販売手数料は無料です。