YADOKARI
経年年数:3年未満
サイズ:19.2㎡
用途:住宅宿泊
¥9,470,000税前価格
【取引形態】YADOKARI売主商品(手数料不要)
本商品はYADOKARIが所有している商品であり、販売手数料は不要です。配送設置費用等は別途かかります。
YADOKARI初の木造トレーラーハウスシリーズ「MIGRA」の新車を、限定2台で販売いたします。
効率的な空間演出により、生活の中心であるリビングやダイニングの広がりを実現。家族や友人と食事やリラックスの時間を楽しめる、機能的で美しい居住空間です。
すぐに新品のトレーラーハウスを購入されたい方、トレーラーハウスでの快適な暮らしをすぐに始めたい方は、この機会にぜひご検討ください!

1:木のぬくもりを感じる内外装
内外装ともに、自然と調和する木質感を大切にしたデザイン。外壁はカラー変更が可能で、設置場所の雰囲気に合わせたアレンジもお楽しみいただけます。
2:広がりを感じる効率的な空間設計
リビングエリアの天井高は約3m。大きな窓からは美しい風景が広がり、タイニーハウスでありながら開放感のある空間を演出します。
水回りの上部にはロフトを配置し、限られた面積を効率的に活用。キッチン、トイレ、ユニットシャワー、洗面台がコンパクトながら実用的にレイアウトされており、複数人でも快適にお過ごしいただけます。
ロフトは大人が座っても頭がぶつからない高さを確保。寝室や収納スペースとして活用できる、ゆとりある設計です。
※カウンター、ベンチはオプションとなります。
調理スペースには簡易キッチンを設置。IHコンロやカセットコンロを追加すれば、簡単な調理も可能です。
3:風景を楽しむ、大きな窓
空間の魅力をさらに高めるのが、大きく切り取られた窓。四季折々の景色を室内から楽しめ、自然との一体感を演出します。



内装は広々、ベッドやソファの設置も可能です。

水回りの上部にはロフトを配置し、限られた面積を効率的に活用

便利なミニキッチン付き
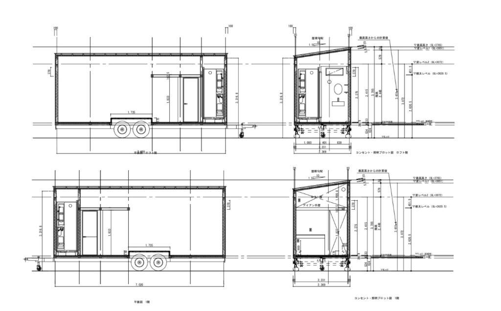
寸法
L7,620mm × W2,521mm × H3,750mm
面積
19.2㎡
構造
木造
シャーシ
24ftシャーシ
外壁
杉板(木材保護塗装仕上げ)
屋根
ガルバリウム鋼板
内壁・天井
ラワン合板+クリア塗装
床
フロアタイル
窓
アルミ樹脂複合ペアガラス
断熱
天井 | ミラフォーム 45mm 壁 | マグイゾベール16K 75mm 床 | ミラフォーム 50mm
設備
ステンレスキッチン・タンク式トイレ・シャワーブース・洗面台・ライティングレール・ダウンライト・換気扇・棚・エアコン
オプション
小上がり床・カウンター・ベンチ
別途工事
(別途費用)
ジャッキ費用/車検取得費用/自動車諸税費/ 配送設置費用/インフラ接続費用/ 給湯器設置工事費用/デッキ設置費用
特記事項
YADOKARIが売主のため、販売手数料は無料です