YADOKARI
経年年数:3年未満
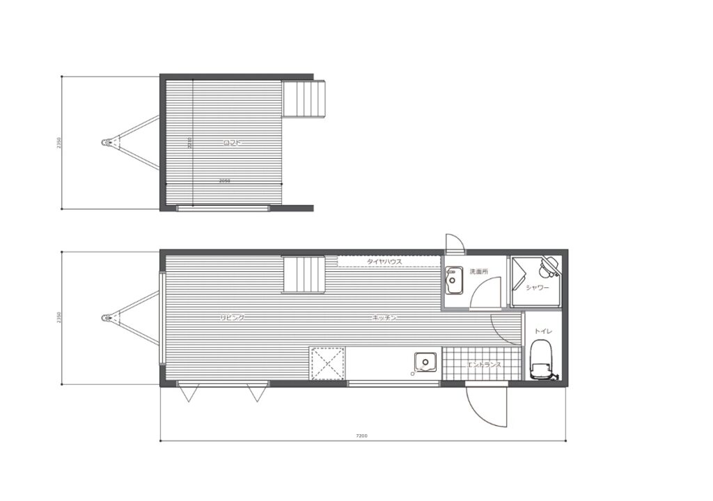
サイズ:15.4㎡+ロフト4.4㎡
用途:店舗住宅宿泊
¥10,550,000税前価格
【取引形態】YADOKARI売主商品(手数料不要)
本商品はYADOKARIが所有している商品であり、販売手数料は不要です。配送設置費用等は別途かかります。

自然の中の滞在・暮らしに特化したトレーラーハウス「ROADIE」の新車を販売いたします。
キャンプ場やグランピング施設などアウトドアフィールド、自然が豊かな場所や遊休地で宿泊施設としての活用や、個人の方には自宅・2ndハウスとしてのご活用など自然の中の滞在と暮らしをご提供します。
豊かな自然の中の滞在・暮らしを実現する5つのデザイン
1:自然と調和する木質感のある外壁と内装
2:外の自然と室内がシームレスに繋がるキッチン&リビング
3:プライベート感と開放感を併せ持つラウンジスペース
4:寝室や荷物置き場など自由に使える秘密基地のようなロフト
5:充実した水回りや収納設備、暮らしをイメージした空間活用


シンクとコンロの位置や、キッチン上の戸棚デザインをリニューアルした最新モデル。見た目や使い勝手がよくなりました。

外とつながる掃き出し窓と景色を眺められるFIX窓があり、明るく開放的な空間に。

広々としたロフト付き。換気用の小窓を設け、読書や作業などもできる天井の高さもございます。
寸法
L7,200mm × W2,350mm × H3,664mm
面積
15.4㎡+ロフト4.4㎡
構造
軽量鉄骨
外壁
一面杉材(木部保護塗料)+ガルバリウム鋼板
屋根
ガルバリウム鋼板
内壁・天井
壁|ジョリパットコテ仕上げ 天井|杉板張り
床
フロアタイル仕上げ
窓
アルミ樹脂複合サッシペアガラス
断熱
天井|グラスウール 24K / 90mm 壁|グラスウール 24K / 50mm 床|スタイロフォーム 100mm
設備
エアコン・レンジフード・キッチン+上部棚・タンクレストイレ・シャワーブース・ 洗面台・照明・室内外コンセント・換気扇
別途工事
(別途費用)
リジットジャッキ/自動車税諸費用/配送設置費用/給排水工事費用/電気引込費用/給湯器設置費用
特記事項
YADOKARIが売主のため、販売手数料は無料です