YADOKARI
経年年数:3年未満
サイズ:22.1㎡
用途:オフィス住宅宿泊
¥9,500,000税前価格
【取引形態】YADOKARI売主商品(手数料不要)
本商品はYADOKARIが所有している商品であり、販売手数料は不要です。配送設置費用等は別途かかります。

大人数でもゆったりと過ごせる30ftサイズのトレーラーハウスの新車です。外壁には風合い豊かな杉板を使用し、室内外ともに木のぬくもりを感じられるデザインが魅力です。時間の経過とともに変わる木の色味も楽しめ、長く愛着を持ってお使いいただけます。
内部にはトイレ、シャワーブース、ミニキッチン、エアコンを完備しており、購入後すぐに快適な暮らしを始められるのもうれしいポイント!
事務所・住居・宿泊施設など幅広い用途に対応し、実物を確認してからの検討・購入も可能です。即納可のため、導入を急がれている方にもおすすめです。
1. 木の質感を活かした外観デザイン
外壁に杉板を採用し、自然素材ならではのあたたかみを感じられる外観に。経年変化による色味の変化も楽しめ、景観にやさしく馴染むデザインです。
2. 生活設備が標準完備された“すぐ住める”特別な1台
トイレ・シャワーブース・ミニキッチン・エアコンを搭載しています。新品の1台なので、快適な環境でそのまま生活や業務をスタートできます。
3. 事務所から宿泊施設まで幅広い用途に対応
広々とした30ftサイズで、多人数利用や複数のレイアウトにも対応可能。住居・事務所・宿泊棟など用途を選ばず、多様なシーンで活躍します。



白と木を基調とした、ここちのよい内装空間

嬉しいロフト付き。荷物を置いたり、お布団を敷いたりと、高い天井を有効活用して快適に過ごせます。
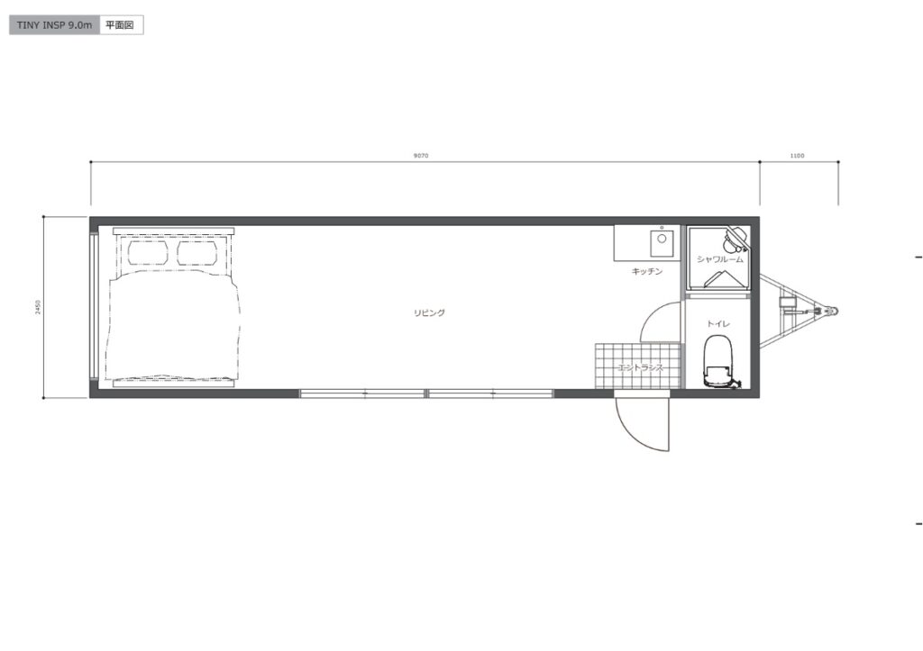
寸法
L9000×W2457×H3774
面積
約 22.1㎡
構造
軽量鉄骨
外壁
杉板貼り 塗装仕上げ:キシラデコール(やすらぎ)
屋根
ガルバリウム鋼板
内壁・天井
壁|塗装仕上げ 天井|シナ合板 素地仕上げ
床
フロアタイル仕上げ
窓
アルミ樹脂複合サッシペアガラス
断熱
床|ミラフォーム 40mm 壁|グラスウール 50mm 天井|グラスウール 100mm
設備
エアコン・換気扇・キッチンシンク・トイレ・シャワーブース
別途工事
(別途費用)
リジットジャッキ費用/車検取得費用/自動車税等諸費用/ 配送設置費用/給排水接続費用/電気引込費用/給湯器設置工事
特記事項
YADOKARIが売主のため、販売手数料は無料です