ROADIE【標準モデル】
YADOKARIから自然の中の滞在・暮らしに特化したトレーラーハウス「ROADIE」誕生。
キャンプ場やグランピング施設などアウトドアフィールド、自然が豊かな場所や遊休地で宿泊施設としての活用や、個人の方には自宅・2ndハウスとしてのご活用など自然の中の滞在と暮らしを提案します。

ROADIEの特徴
豊かな自然の中の滞在・暮らしを実現する5つのデザイン
1:自然と調和する木質感のある外壁と内装
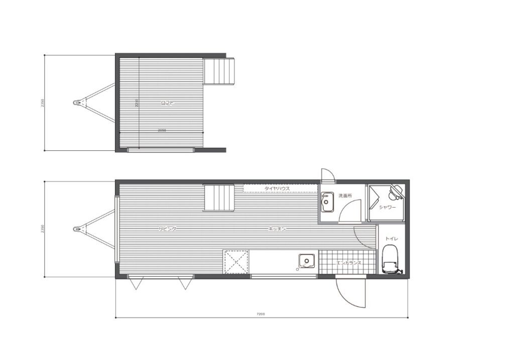
2:外の自然と室内がシームレスに繋がるキッチン&リビング
3:プライベート感と開放感を併せ持つラウンジスペース
4:寝室や荷物置き場など自由に使える秘密基地のようなロフト
5:充実した水回りや収納設備、暮らしをイメージした空間活用
ROADIEのスタイル
