
大人数でもゆったりと過ごせる30ftサイズのトレーラーハウスが、ついに実車販売スタート。外壁には風合い豊かな杉板を使用し、室内外ともに木のぬくもりを感じられるデザインが魅力です。時間の経過とともに変わる木の色味も楽しめ、長く愛着を持ってお使いいただけます。
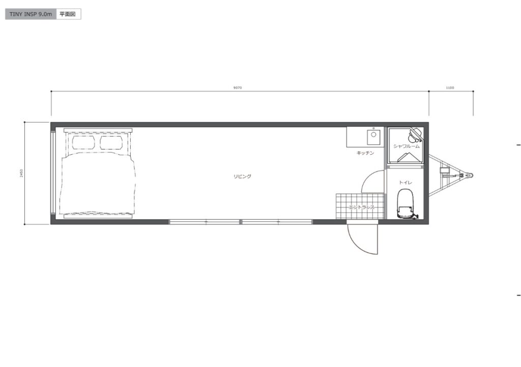
内部にはトイレ、シャワーブース、ミニキッチン、エアコンを完備しており、購入後すぐに快適な暮らしを始められるのもうれしいポイント!
事務所・住居・宿泊施設など幅広い用途に対応し、実物を確認してからの検討・購入も可能です。即納可のため、導入を急がれている方にもおすすめです。
1. 木の質感を活かした外観デザイン
外壁に杉板を採用し、自然素材ならではのあたたかみを感じられる外観に。経年変化による色味の変化も楽しめ、景観にやさしく馴染むデザインです。
2. 生活設備が標準完備された“すぐ住める”特別な1台
トイレ・シャワーブース・ミニキッチン・エアコンを搭載しています。新品の1台なので、快適な環境でそのまま生活や業務をスタートできます。
3. 事務所から宿泊施設まで幅広い用途に対応
広々とした30ftサイズで、多人数利用や複数のレイアウトにも対応可能。住居・事務所・宿泊棟など用途を選ばず、多様なシーンで活躍します。
白と木を基調とした、ここちのよい内装空間。
嬉しいロフト付き。荷物を置いたり、お布団を敷いたりと、高い天井を有効活用して快適に過ごせます。