
YADOKARIがお届けするベーシックライン「Tinys INSPIRATION」から、広々とした7.2mモデルの実車販売がスタートしました!
水回りを標準搭載しているため、居住用・宿泊施設・店舗・事務所など、さまざまな用途にフィットします。
こちらの実車販売は、限定1台。
見学・即納が可能な水回りやエアコン付きの新品モデルですので、「とにかく早く使いたい!」「状態の良い実車をすぐに導入したい」という方におすすめです。
7.2mモデル|Tinys INSPIRATIONの特徴
1. 開放感のある大きな窓
大きな窓が外の景色をまるで一枚の絵画のように切り取り、自然とのつながりと心地よい開放感を演出します。
滞在時間が長い住居・宿泊施設・店舗にも最適です。
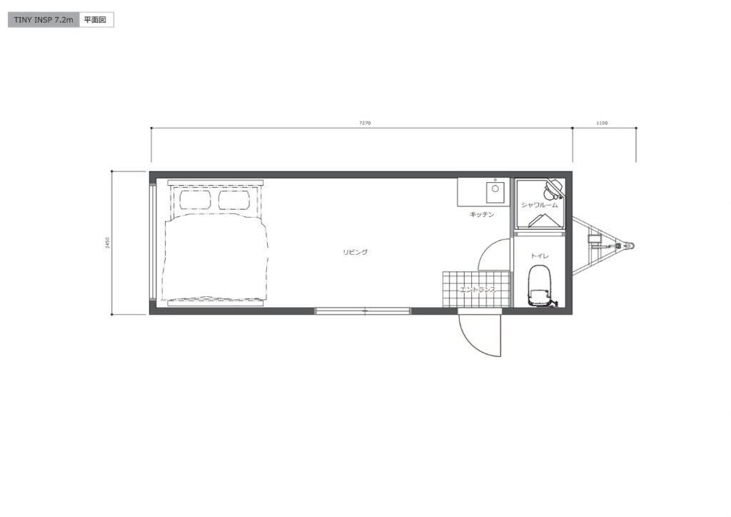
2. 充実の水回り(シャワー・トイレ・ミニシンク)
暮らしや事業利用に欠かせない設備を完備。
水洗トイレ、シャワー、ミニシンクが標準搭載されているため、設置後すぐに利用を開始できます。
3. うれしいエアコン付き
エアコンが付いておりますので、暑さや寒さにも安心。快適な滞在をすぐに始めることができます。
木目を基調としたあたたかみのある空間です。
自然とのつながりと心地よい開放感を演出する大きな窓