MIGRA 標準モデル
YADOKARI初の木造トレーラーハウスシリーズ「MIGRA」が登場。効率的な空間演出で、生活の中心であるリビングやダイニングの広がりを実現しました。家族や友人と共に食事やリラックスの時間をお楽しみいただける、機能的かつ美しい居住空間を提供します。

MIGRA 標準モデルの特徴
1:木のぬくもりを感じる内外装
内外装ともに、自然と調和する木質感を大切にしたデザイン。外壁はカラー変更が可能で、設置場所の雰囲気に合わせたアレンジもお楽しみいただけます。
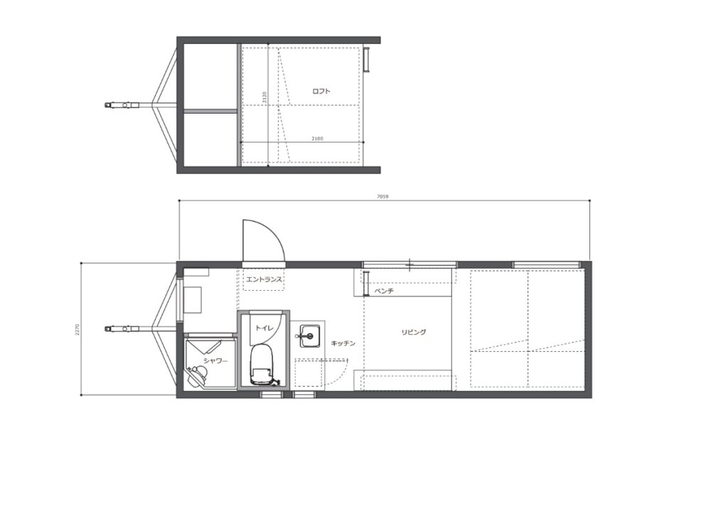
2:広がりを感じる効率的な空間設計
リビングエリアの天井高は約3m。大きな窓からは美しい風景が広がり、タイニーハウスでありながら開放感のある空間を演出します。
水回りの上部にはロフトを配置し、限られた面積を効率的に活用。キッチン、トイレ、ユニットシャワー、洗面台がコンパクトながら実用的にレイアウトされており、複数人でも快適にお過ごしいただけます。
ロフトは大人が座っても頭がぶつからない高さを確保。寝室や収納スペースとして活用できる、ゆとりある設計です。
※カウンター、ベンチはオプションとなります。
調理スペースには簡易キッチンを設置。IHコンロやカセットコンロを追加すれば、簡単な調理も可能です。
3:風景を楽しむ、大きな窓
空間の魅力をさらに高めるのが、大きく切り取られた窓。四季折々の景色を室内から楽しめ、自然との一体感を演出します。



※カウンター、ベンチはオプションです。